Vinh Loc 2 Industrial Park

Oct 29, 2021

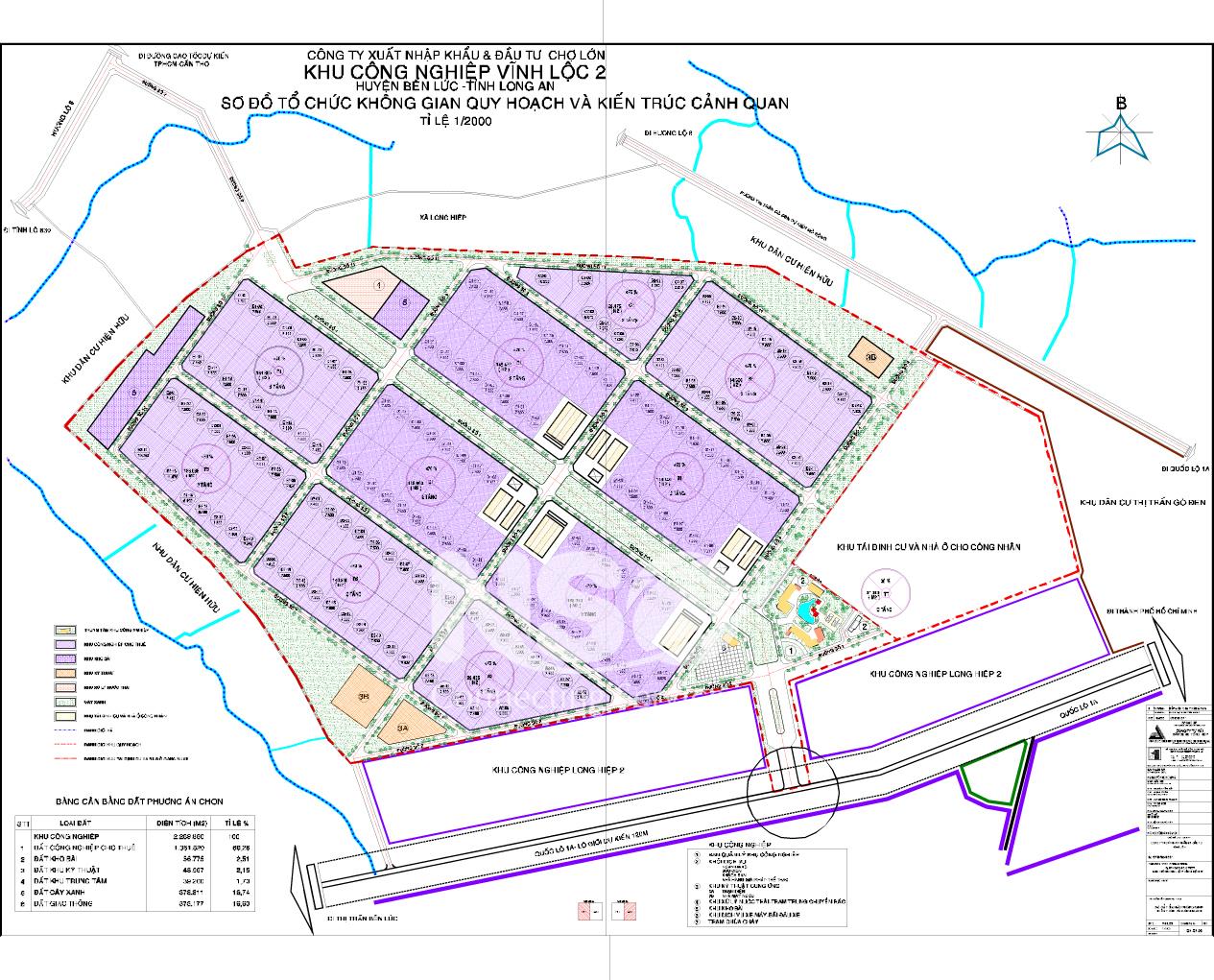
VINH LOC INDUSTRIAL PARK 2

Investor: Vinh Loc Industrial Park Construction and Investment Joint Stock Company - Ben Luc

Location: National Highway 1, Voi La Hamlet, Long Hiep Commune, Ben Luc Dist

Area: 562 hectares

STRENGTHS

* Band reputation: The Company is incorporated by shareholders who are experienced in investment and business in industrial park infrastructures, including Vinh Loc Industrial park Company Limited, who was particularly successful in the Project of Vinh Loc Industrial park in Ho Chi Minh City;

* Regional development potential: Industrial park of Vinh Loc 2 is located in Ben Luc, bordering Binh Chanh District, Ho Chi Minh City, which is considered as the key economic center of Long An province and expanded urban area to the West of Ho Chi Minh City, resulting in higher growth rate than other areas;

* Strategic location with favorable traffic connections: Industrial park of Vinh Loc 2 has the main gate adjacent to National Highway No. 01, favorable for transportation with respect to both roads (façade of National Highway No. 01, 3 km from Sai Gon-Trung Luong highway and 20 km from Ho Chi Minh downtown…) and waterways (27 km from Sai Gon port and 4km from Bourbon port);
* Infrastructure: modern and synchronic planning, every land lot borders at least 2 roads: 1 main road (width of 30-47 m) and 1 secondary road (width of 8-16 m), facilitating transportation of high-load vehicles, exits and construction of infrastructures of enterprises.
* Natural advantages thanks to soil structures: Industrial park of Vinh Loc 2 is located far away from rivers, resulting in relatively hard geological characteristics, reducing construction costs, ensuring works’ durability and lowering annual maintenance costs;
* Price and payment method: adapted to every investor’s condition;
* Ability to attract manpower, living conditions and social welfares in the park: Industrial park of Vinh Loc 2 is located in township with dense population and abundant workers with high skills, effectively meeting the demand for manpower of enterprises;
* Policies to attract investment and competitive advantage of locality: Long An has policies to make favorable conditions to investors by establishing friendly environment, adopting one-stop policy for quick and favorable investment procedures;
High density of plants and workshops (70%); the maximum height of plants is 5 floors, stocks 4 floors.

POSITION

Located at Km 1929 – 1930, National Highway No. 01, Voi La Village, Long Hiep Commune, Ben Luc District, Long An, bordering Binh Chanh District, Ho Chi Minh City, directly connected to National Highway 1A in the front side, adjacent to Ho Chi Minh-Can Tho Highway in the back side, bordering Bourbon port (load of 5,000 tons).

 

Distance to traffic hubs

Downtown: 25 km

Tan Son Nhat Airport: 28km

An Lac Intersection (connected to Dong Tay Avenue): 14 km

Nguyen Van Linh Intersection (connected to National Highway 1A): 10 km

Phu My Hung Urban Zone: 22 km

Sai Gon Port: 27 km

Bourbon Part (Ben Luc): 04 km

INVESTMENT INCENTIVES

Free of 02 years, 50% in the next 04 years. 20% corporate income tax.
Click here for more detail

PERFORMANCE DURATION

50 years (2011-2061)

LEASING PRICE AND MODE OF PAYMENT

Rental rate: 200USD/m2

adjusted from time to time, depending on location and payment method.
Payment method: flexible, adaptable to investor's demand and financial capability

FACTORY LEASE PRICE

3-4USD/ m2/month

INFRASTRUCTURE MANAGEMENT FEES AND OTHER SERVICES

0.4 USD/m2/năm

WATER RATES

Applying the prices of Long An Water Supply Company

FEE WASTEWATER TREATMENT

Sewage treatment fee: 0.3 USD / m3 (type B, coefficient k = 1)

ELECTRICITY PRICE

According to the price table of the Government

FUNCTIONAL BLOCK

Land for factory: 148,28 ha
Administrative and service area: 3,09 ha
Technical works: 2,93 ha
Transport roads: 40,09 ha
Green trees: 31,97 ha

LAND USE STRUCTURE

 

SCOPE OF PERMITTED INVESTMENTS

Agricultural, forestry, fishery processing industries; foods and foodstuffs (excluding seasoning powder); foods for livestock, poultry and seafoods; beverages (excluding alcoholic drinks).
Fertilizers, pesticides; pharmaceutica products and medicines; cosmetics; paints; bio-fuels, coal; plastic (construction, industrial and household plastic); rubber tires and products made from rubbers; plastics and products therefrom.
Construction material production, interior decoration, components for fabricated house, roofings, coverings; wood processing and products therefrom (not impregnated), ply wood, household woodworks, handicraft products; ceramics, glass, crystal, tiles, lights; sound and electricity insulated materials, composite.
Manufacture and assembly of machineries and equipment, electric parts and accessories (machinery, industrial and household electricity), electronics, informatics, information and technology (IT), telecommunication; electrical materials, telecom cables, IT products.
Mechanical industry, manufacture of machineries, equipment and parts serving agriculture, forestry, fishery industry and transportation; manufacture and assembly of bicycles, motorbikes, cars and other transport means and replacements; pattern processing, metal rolling; manufacture of metal products and alloys; medical equipment and tools, laboratories, labor protection, fire fighting and prevention.
Production of consumption and household goods: textile, embroidering, knitting, garments; luggages, handbags; footwears; packages; prepress, printing; paper and products therefrom (excluding pulp); stationeries; equipment and tools for offices and schools; sports equipment; toys; crafted jeweleries and specious stones.
Other: trade-services (banking, post, telecommunication, logistics), workshops, warehouses and other industries which cause less environmental pollution.

CLIMATE

Tropical monsoon climate with two distinct seasons:
Rainy season: May-November
Dry season: December-April
-Average moisture in dry season: 77%
-Average moisture in rainy season: 83%
-Highest moiture in September: 84%

TOPOGRAPHY AND GEOLOGY

- Land height: 2,1 m
- Compressive strength: 0,082 cm2/kg
- Cohesion strength C: 0,18 kg/cm2
- Natural unit weight: 1,96 g/cm3
- Compressibility coefficient: 1,74 kg/cm2

WASTE WATER

Follow current Vietnam's standards

FIRE PREVENTION AND PROTECTION

Fire protection system complies with the current regulations of the government

INFRASTRUCTURE

 

TRAFFIC SYSTEM

• Main internal road: width of 30 - 47 meters.
• Secondary internal road: width of 8 - 20m.
The main routes to the land area are Road VL1 (directly connected to National Highway No. 1A) and VL2, VL3, VL4 which have been levelled and asphalt covered (the widths of main roads and secondary roads are 30-47m and 8-16m, respectively; sidewalks with green trees) up to the rented land area, ensuring the smooth transport of construction materials an goods.

ELECTRICITY SUPPLY SYSTEM

* Phase 1: electricity is supplied by the National Grid through Go Den electricity Station (110/22KV), serving for all electricity use purposes of enterprises including: production, business, living and lighting...
* Phase 2: electricity is supplied by internal electricity station of the industrial park (110/22kV), meeting the demand for electricity of all enterprises operating in the industrial park including public light and electricity for resettlement and boarding areas.

WATER SUPPLY SYSTEM

Phase 1: capacity of 5,000 – 7,000 m3/day and night, supplied by Go Den Water Plant
Phase 2: capacity of 7,000 – 12,000 m3/day and night, supplied by both water treatment and exploitation station of industrial park of Vinh Loc 2 and Go Den Water Plant with water running though pipelines of the industrial park to rented land area, ensuring sufficient supply of quality water for enterprises.

WASTEWATER TREATMENT SYSTEM

Centralized wastewater treatment plant of industrial park of Vinh Loc 2 is put into use with capacity in phase 1: 2,000 m3/day and night, in accordance with national standard on industrial wastewater QCVN24:2009/BTNMT

POST AND TELECOMMUNICATION SYSTEM

Establish modern and complete posts and telecommunications network, synchronically connecting to national and international telecommunications networks, information and communication system with high-speed internet connection.

PUBLIC UTILITIES

- Banking system: support and supply corporate financial services and transactions by residential community.
- Local general hospitals: health care for workers and first aid 24/7
- Vocational and labor promotion colleges: provide training courses to improve qualifications of workers, support enterprises in seeking and selecting skilled workers.
- Sports centers: meet the demands for physical exercises of workers and staff and organize friendly matches among enterprises.
- Customer conference centers: equipped with sufficient amenities for events and customer conferences.
- Boarding area for workers-resettlement area: meet the demand for settlement of all workers and staff working in the industrial park so that workers can live with ease and enterprises can stabilize their manelectricity as well as their development. This is both strength and highlight of Industrial park of Vinh Loc 2, completely overcoming the current drawback of most industrial parks in Ho Chi Minh City where manelectricity is unstable.
- Supermarket and commercial center: supply workers with consumption goods.
- Kindergarten and school: childcare and teaching for children of workers and staff working in the industrial park.
- Security-Firefighting: Develop professional and experienced security guards and firefighters with sufficient modern equipment and ready all the time to ensure both spiritual and material lives for enterprises in the industrial park.
- Green tree-environment hygiene services: ensure beauty and hygiene, care for the landscape surrounding working area of enterprises.

SUPPORTING SERVICES

 

FREE SERVICES

Pre-investment support:
• Free support in procedures of investment application at Long An Economic Zone Authority (LAEZA);
• Adopting investment policies which are flexible and adapted to customer's demands;
• Investment consultancy and support in completing procedures simply and quickly;
• Consultancy and support in completing procedures for bank loans.
Post-investment support:
• Construction and design consultancy & free support in procedures to apply for construction license, commitment-assessment of environmental impacts, methods of fire fighting and prevention...
• Support in completing procedures for land use right certificate (Red document).
• Support in completing procedures for Work ownership certificate (Pink document).
• Utility services supply;
• Customer care & annual activities for community;
• Enhancing worker's living standards (boarding house, commercial and medical services, kindergarten-school, connected residential cluster development)

SUPPORTING SERVICE

- Petrol and oil supply
- Industrial catering supply
- Banks, shopping areas, schools, job centers

Contact:

 

National One Stop Services and Investments Organization

Office: Parkview, 5A Huu Nghi Ave, VSIP 1, Binh Hoa Ward, Thuan An City, Binh Duong.

Contact:

  1. Ms Hien Do – 0908 069 399 – hien.dt@nso.com.vn
  2. Mr Cuong Phan – 0913 855 528 – cuong.pd@nso.com.vn