Expanded Phu My II Industrial Park
1. Information about the developer:
– Investor name: IDICO Corporation JSC
– Address: 151 ter Nguyen Dinh Chieu, Ward 6, District 3, Ho Chi Minh.

2. Information about the Industrial Park:
–Establishment Decision No.: 2504/QD-UBND dated July 25, 2008 of the People's Committee of Ba Ria - Vung Tau Province;
– Decision approving industrial zone planning: No. 1704/QD-UBND dated May 20, 2008; No. 3626/QD-UBND dated December 19, 2017; No. 3468/QD-UBND dated December 5, 2018 of the People's Committee of Ba Ria - Vung Tau Province;
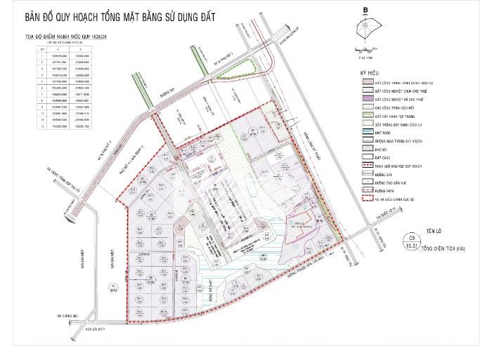
USING LAND STRUCTURE
(according to Decision No. 3468/QD-UBND dated December 5, 2018)
|
Land Type
|
Size (ha)
|
(%)
|
|
Land for factory
|
236,32
|
59,70
|
|
Land for warehouse
|
9,16
|
2,30
|
|
Land for construction of operating and service areas
|
3,82
|
1,00
|
|
Green land, water surface
|
86,19
|
21,50
|
|
Land for traffic, parking and ports
|
53,79
|
13,40
|
|
Land for construction of technical works
|
11,59
|
2,90
|
|
TOTAL
|
400,87
|
100
|
– Address: Tan Phuoc and Phuoc Hoa wards, Phu My town, Ba Ria – Vung Tau province.
– Operating time: until July 25, 2058
– Total investment capital: 1,876,759 billion VND.
– Area of industrial land, warehouse for rent: 245.48 ha
- Infrastructure:
* Internal transportation system
+ East road 965, 2,065m long, 75m wide, 2 x 12m road for vehicles;
+ Western inter-port road, cross section 50m;
+ Main road D3, 1,443m long, 63m wide, 2 x 12m road for vehicles;
+ N6 main road axis, 1,410m long, 31m wide, 15m road for vehicles;
* Drainage system: Rainwater drainage system and Sewage drainage system separately
* Communication systems
Fully, ensure easy domestic and international communication including phone, mobile phone, Fax, Internet for investors;
* When burning naturally
There is a gas system currently planned to provide investors in the industrial park
* Centralized wastewater treatment plant:
+ The centralized wastewater treatment plant in the industrial park has been completed, receiving industrial wastewater from the factory fence.
+ Capacity Phase 1:4,000 m3/day and night.
+ Waste water treatment fee: 0.40 USD/m3
– Land area for sublease: 86.12 ha reached occupancy rate: 31.75%
Land rental price includes:
* Fee for using package infrastructure: equivalent to 85USD/m2/full term
- Payment in 2 installments:
+ Phase 1: 50% within 15 days from the date of signing the land sublease contract;
+ Second installment: 50% within the first 15 days of the 13th month from the date of signing the Land Sublease Contract;
*Annual Management Fee: equivalent to 0.50USD/m2/year.
* land rental payment to the annual state: temporaryly 1,453 vnd/m2/year. This unit price will be adjusted annual by state regulations.
– Power Supply:
* Source: From the National grid managed by Phu My Electricity / Ba Ria - Vung Tau Electricity.
* Electricity price of 22kV (excluding VAT) (According to State regulations):
+ Normal hours (04:00-9:30; 11:30-17:00; 20:00-22:00): 1,555ND/kWh
+ Peak hours (9:30-13:30; 17:00-20:00): 2,871VND/kWh
+ Off-peak hours (22:00 – 04:00) : 1,007 VND/kWh
3. Advantages of connecting to the external transport system:
* Road distance:
+ National Highway 51: 1.5Km
+ Expressway Ho Chi Minh City - Long Thanh - Dau Giay : 30 Km
+ Vung Tau city: 40 Km
+ Ho Chi Minh City: 60-70 Km
+ Bien Hoa city: 50-55 Km
*About the port:
+ Thi Vai port (ships of 80,000 tons docked): 01 Km
+ PTSC port (60,000 ton ships docked): 02 Km
+ Phu My port (ships 72,000 tons docked): 02 Km
+ Vung Tau Port: 35 Km
*About the airport:
+ Tan Son Nhat Airport: 70 Km
+ Long Thanh Airport (future): 35 Km
* Distance to railway station:
+ Saigon Station: 70 Km
+ Bien Hoa Station: 55 Km
4. Industries attracting investment:
+ Producing industrial electronics and specialized electronics
+ Producing components and accessories
+ Producing electronic materials and consumer electronic products.
+ Mechanical equipment manufacturing spare parts
+ Mechanical assembly industry
+ Mechanical repair industry
+ Metallurgy, rolling products
+ Producing consumer chemicals, cosmetics industry
+ Producing fertilizers, microbial plant protection drugs
+ Textile and garment industry
+ Producing high-class footwear
+ Plastic industry
+ Glass ceramic industry